Design Case Study: Swapping and Redesigning Bathrooms for a Larger Ensuite and Functional Powder Room

Gold People Choice Award BadgeSilver People Choice Award BadgeBronze People Choice Award Badge

Before After
No items found.

Project Overview

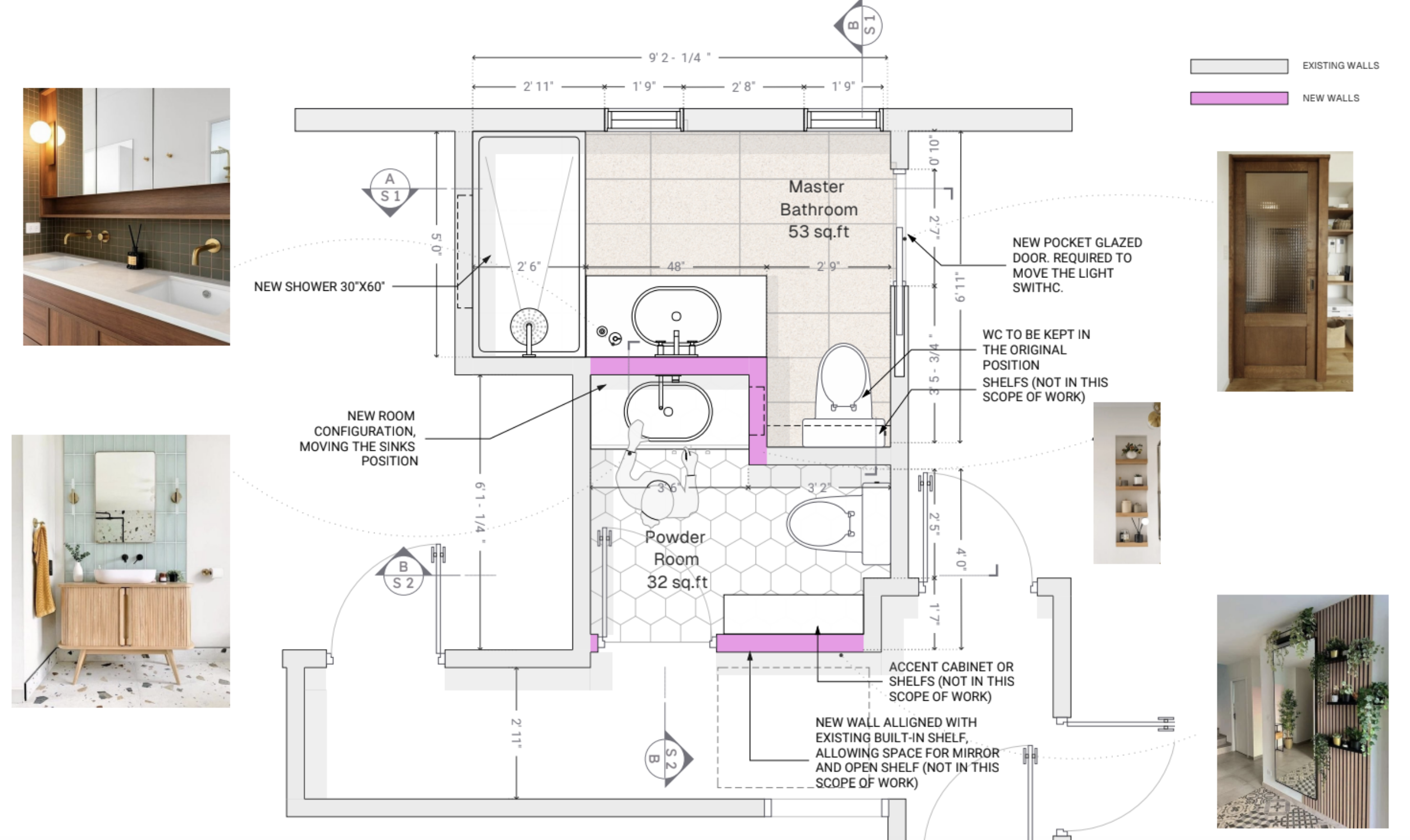
The homeowners of a beautiful, mid-century modern home were seeking to swap and redesign their existing guest bathroom (full) and ensuite (half) to better meet their needs. The current guest bathroom, which is more than double the square footage of the ensuite, was to be transformed into a 3/4 bath (shower only) for the ensuite, while the existing ensuite would become a half bath/powder room. The project aimed to maximize space, minimize plumbing costs, and incorporate a built-in bookcase from the guest bathroom into the new layout. The team at Refresh Renovations was tasked with creating a design that would achieve these goals while maintaining a modern aesthetic.

Design Objectives

  1. Swap Bathrooms: Convert the existing guest bathroom into a larger 3/4 bath (shower only) and the existing ensuite into a half bath/powder room.
  2. Maximize Space: Ensure the new ensuite feels larger and more functional.
  3. Minimize Plumbing Costs: Keep new toilets in the same location to reduce plumbing expenses.
  4. Incorporate Built-in Bookcase: Remove the existing bookcase from the hall and incorporate it into the new space.
  5. Pocket Door for New Ensuite: Install a pocket door to save space and enhance the modern look.
  6. Reuse Exhaust Fan: Utilize the existing, almost new exhaust fan to save costs.
  7. No Change to Windows: Maintain the existing windows, with the option to have one or two windows in the new ensuite.
  8. Replace Materials: Replace all other materials with new, high-quality options unless otherwise specified by the clients.

Design Implementation

New Ensuite (3/4 Bath)
  • Layout Redesign:
    • The existing guest bathroom to be converted into a larger 3/4 bath with a modern design.
    • The new layout includes a spacious shower, a sleek vanity with a modern sink, and a pocket door to save space and enhance the modern look.
  • Shower:
    • A walk-in shower with a frameless glass enclosure and a rainfall showerhead to be installed.
    • The shower features oil-rubbed bronze fixtures and modern, easy-to-clean tiles.
  • Vanity and Sink:
    • A custom-built vanity with ample drawer space and a modern, undermount sink to be installed.
    • The vanity is designed with a minimalist design, featuring clean lines and a high-quality, easy-to-clean surface.
  • Pocket Door:
    • A pocket door was installed to save space and provide a seamless, modern look.
  • Lighting:
    • New, modern LED lighting fixtures to be installed, including recessed lights and a sleek, oil-rubbed bronze ceiling fan.
  • Windows:
    • The new ensuite will have one window to maintain natural light and ventilation while keeping the design modern and functional.
New Guest Bathroom (Half Bath/Powder Room)
  • Layout Redesign:
    • The existing ensuite was converted into a half bath/powder room with a modern, design.
    • The new layout includes a sleek vanity with a modern sink and a toilet.
  • Vanity and Sink:
    • A custom-built vanity with ample drawer space and a modern, undermount sink to be installed.
    • The vanity is designed with a minimalist, aesthetic, featuring clean lines and a high-quality, easy-to-clean surface.
  • Toilet:
    • The existing toilet location to be maintained to minimize plumbing costs.
  • Lighting:
    • New, modern LED lighting fixtures to be installed, including recessed lights and a sleek, oil-rubbed bronze ceiling fan.
  • Exhaust Fan:
    • The existing, almost new exhaust fan to be reused and repositioned to ensure proper ventilation.
  • Built-in Bookcase:
    • The built-in bookcase from the hall to be removed and incorporated into the new guest bathroom.
    • A new hallway wall to be constructed to accommodate the bookcase, and the attic fan opening was adjusted to fit the new layout.

Conclusion

The homeowners are thrilled with the design of their bathrooms. The new ensuite is a spacious and functional 3/4 bath that meets their needs, with a modern, design that they love. The new guest bathroom, now a half bath/powder room, is compact and efficient, with the built-in bookcase adding a unique and functional touch. The project has not only refreshed their home but also enhanced its overall value and quality. 

No items found.
This project was completed in
December 2024
.
Project description
Location
Broomfield
United States
Client
Project duration
Cost estimate
Actual cost
Challenges
Interesting aspects
Share to

Chris Carter is a Remodeling Consultant of McGraw Hardware and Building Supply Company, a franchisee of Renovation Franchise Ltd, doing business in Boulder.

Actual costs vary by project. Plan ahead to reduce the impact of industry changes or disruptions. For more information see here.

Talk to a renovation consultant today

If you would like to find out how Refresh Renovations can support you with a high quality, efficient home renovation, get in touch today. Your local Refresh Renovations consultant will be happy to meet with you for a free, no obligations consultation.

Get in touch
No items found.